第10回 ダイワハウスコンペティション 後援:株式會社新建築社

審査委員長
小嶋 一浩 建築家 CAtパートナー 橫浜國立大學建築都市スクールY-GSA教授
審査委員
堀部 安嗣 建築家 堀部安嗣建築設計事務所 京都造形蕓術大學大學院教授
平田 晃久 建築家 平田晃久建築設計事務所 東北大學特任準教授
西村 達志 大和ハウス工業代表取締役専務執行役員
建築を設計する時、建蔽率や斜線制限、防火の問題など多くのことが「道路」を基準に決まってきます。建築基準法で定められた「道路」は常識として受け入れられているものですが、建築も敷地もそこから大きな制約を受けており、街は道路に支配されている、といえるかもしれません。
では、車の通行を前提とした「道路」が、人や建築に寄り添った「徑」に置き換わったとすると、街はどのように変わるのでしょうか。本コンペでは、既成の「道路」から解放されて人や建築が主體となり、そこに徑が生まれてくる街の提案を求めます。
まず、敷地は架空でもリアルでも自由です。そこに數戸でも100 戸でも規模も機能も自由に、「道路」から解放された街と徑の関係の提案を求めます。そして、その街の中の1戸あるいは1棟の窓から見える街の風景を表現してください。常識を乗り越え、制度を飛び越えるようなアイデアを期待します。
大和ハウス工業が主催する「第10 回ダイワハウス コンペティション」は10月16日に、小嶋一浩、堀部安嗣、平田晃久、西村達志の4氏による1次審査會が行われ、応募作品141點(応募登録316件)から1次審査通過7點と佳作10點(各5萬円)が選出されました。
そして11月26日の公開2次審査において、通過者によるプレゼンテーションを行った後、公開審査により各賞を決定。最優秀賞(1點):200萬円、優秀賞(2點):各30萬円、大和ハウス工業賞(1點):30萬円、入選(4點):各10萬円を決定しました。
大和ハウス工業賞は、1次審査通過7作品の中から、公開2次審査のプレゼンテーションと質疑応答を通して、審査委員とは獨立したかたちで大和ハウス工業が1作品を選出する賞。
大和ハウス工業賞の審査委員は以下の通り。
目賀田史夫(大和ハウス工業住宅事業推進部東京デザイン事務所デザイングループ)、內田修(大和ハウス工業多摩支店住宅設計課)、波田野晉之輔(大和ハウス工業橫浜支社集合住宅設計部)、鎌田広(大和ハウス工業東日本中高層技術センター設計部)、岡田博文(大和ハウス工業橫浜支社流通店舗事業部設計部)、西村強(大和ハウス工業建築事業推進部企畫開発部企畫デザイングループ)。
小山 沢 竹中工務店
牧村 將吾 竹中工務店
武井 良祐 日本設計
曽根 拓也 日本設計
武井 良祐 日本設計
曽根 拓也 日本設計
舘 孝幸 前橋工科大學大學院
井津 利貴 前橋工科大學大學院
渡邊 圭亮 前橋工科大學大學院
鈴木 弦 東京理科大學大學院
近藤 洋一 東京理科大學大學院
林 孝之 フリーランス
田中 伸明 橫浜國立大學大學院
元木 智也 京都工蕓繊維大學大學院
廣田 剛 京都工蕓繊維大學大學院
穴瀬 博一 類設計室
大越 菜央 類設計室
川內 麻生 類設計室
井上 恵一 一級建築士事務所 PandA
堀 真美 一級建築士事務所 PandA
齋藤 信正 travelbag
橋本 阿季 神戸大學大學院
森下 孝平 神戸大學
鈴木 甫 大和ハウス工業
増田 伸也 東京大學大學院
久保 祐里子 橫浜國立大學大學院
鈴木 理咲子 東京藝術大學大學院
廣戸 海渡 フリーランス
中野 雄貴 九州大學
深澤 尚仁 九州大學大學院
小笠原 正樹 Outsiders Studio
粟屋 大紀 大和ハウス工業
今回は本當に視點を変えればどれが賞を取ってもおかしくないクオリティのある提案ばかりで、審査委員としてたいへん嬉しく思っております。
難しい課題だったと思いますが、しなやかにいろいろな提案をしてくれました。その中で、建築をしっかり設計している案、ほとんど設計していない案、少しだけ設計している案と、傾向が分かれたように思います。
ドローイングだけでは読み切れないところもあるので、実際のプレゼーテーションを聞いて、曖昧なものではなく、確信をもってこれがやりたいと表現してくれる案を評価したかった。そういう意味では、最優秀賞に選ばれた「塀を結ぶことで解かれる街」は、しっかり確信をもって提案してくれた案だと思います。
よい課題だったと思いますし、2次審査に殘った7作品の設計者が誠実に応えてくれて、さらによい課題にしてくれたと思います。
発表內容もプレゼンテーションも密度があり、とても気持ちがよかったです。若い方が街や建築に対してどう思っているのか、正直な等身大のところが表現されていて興味深かったです。街をつくるということは難しくて多面的ですから、どこをとっても突っ込みどころだらけなのですが、突っ込まれることも恐れずにひとつの考えを爽やかに打ち出したことが評価されたと思います。
また、圧倒的な手數を踏んでひたすら手足を動かして、だんだん自分のやり方が見えてくるような取り組み方はとても大事なことだと思います。
2次審査に殘った7作品はどれも考えさせられる面白い視點をもち込んでいて非常によいと思いました。
インターネットが発達した今の時代では、小さなひとつひとつの集積が、群れのような秩序として立ち上がるということが、理想論ではなく技術の集積によって起こり得る。そのことがコンペの提案を通して感じられたのがよかったです。
街がトップダウン的ではなくボトムアップ的に成立するかもしれません。
また、1次審査の時に必ずしも全員が評価していた提案が上位に入ったわけではないのが面白いところで、特に「塀を結ぶことで解かれる街」は、じわじわと最後の方に浮上してきて、今日最高潮を迎えました。ほかの案もそれぞれの主張があり、ストーリーの立て方やドローイングに見応えがありました。
若い人たちの発表の場、學びの場を設けようということでスタートしたこのコンペも、第10回を迎えました。新しい切り口の課題に対して、甲乙付け難い案がたくさん集まりました。1次審査と2次審査で提案の印象が変わることはよくありますが、想定通りだったものと、想定以上だったものがありました。
審査委員の方々からは、ここをうまく強調したらよくなる、というアドバイスや質問が多くありましたが、そこへの解答の仕方ももったいないと思うものが多く、皆さんを応援する意味で少しイライラする部分もありました。
これから大きく羽ばたいていく人たちのためのコンペですので、この経験を糧にして次に繋げていってほしいと思います。
第9回から設けられた「大和ハウス工業賞」を授與するにあたり、大和ハウス工業設計部の6名で審査を致しました。
他の街から來た人がこの街の道を通った時に、ワクワクしたり期待感をもてるかを重視し、「塀を結ぶことで解かれる街」と「ケモノミチノマチ」が候補となりました。「塀を結ぶことで解かれる街」は、塀を延長して敷地の中に道を取り込み、住んでいる人びとが自由に使えるようになるという、道と敷地の関係を曖昧にする提案で共感しましたが、「ケモノミチノマチ」の、設計者や都市計畫家が道や街をつくるのではなく、そこに住んでいる人たちが自分たちでつくっていくという主體のあり方を評価して、最終的に「ケモノミチノマチ」を「大和ハウス工業賞」に選ばせていただきました。
車社會が前提となってつくり出された道や街を見直し、車や自転車、人のさまざまなアクティビティを許容する「徑」を街に生み出すことを考え、日本の住宅地に多く見られる、敷地を囲むように配置される塀に著目。
近年、倒壊などで問題視される塀を住宅地における共有資源としてとらえ、その塀を延長し、周辺住宅と共有することを提案する。道路をまたぐように住宅の塀同士を結び、人だけが通れる開口を設けて車の通行を制限することで、これまで移動のためにしか使われていなかった道が、人びとのさまざまなアクティビティを許容する「徑」へと変化していく。
塀を延長することによって生まれる「徑」は、住民の新たな生活の場となり、敷地境界を曖昧にさせ、街區という概念を解いていく。
塀というマイナスに捉えられがちな要素に延長するという少しの操作を加えることで、街全體に大きな影響を與え、人びとの生き生きとした活動を促す。
街にほんの少し手を入れるだけで新しい関係を生み出すという非常に知的な案。リアリティをもって描かれているのがよい。プレゼンテーションで見せてくれた模型も、ささやかな素材の違いで道路と「徑」の違いを表現していて、表現力も評価できる。
(小嶋一浩)
センスがよい。少ない手數で考えさせられる案。負の遺産と見られがちな塀を正の遺産にしていくという考え方が前向きで共感できる。シンプルに表現しているが、その中に描かれていない家の様子や営みが見えてくるような密度がある。
(堀部安嗣)
道のあり様に対する根本的な思想、スタンスが強く伝わってきた。シンプルなドローイングの中に凄みがある。車が入ってこられる道もあるのであれば、その関係についても表現するとよかった。
(平田晃久)
著眼點が優れている。プレゼンテーションが上手く、聞いて印象が変わった。シンプルな提案だが、街や人の活動がさまざまに展開していく可能性を秘めている。
(西村達志)
「徑」をインフラとしての大きな視點ではなく、人や動物が動き出す小さな一歩から考えた。
移動経路として便利な場所を、人や動物が長い年月をかけて通ることで生まれる獣道のように、人や動物や植物の意志が反映された「徑」のある街をつくる。
アスファルトの代わりに、保水性パネルやヤシガラマットなどを織り交ぜながら土や草を敷き詰める。
それにより人や動物が通る「徑」が自然に顕在化されていき、風景をつくっていく。
街に獣道ができることで建築の振る舞いも変化する。減築をしてできたピロティを街に開放し、人びとが集まれる場所をつくる。使われていない部屋を溫室やテラスとし、生活の幅を広げていく。
獣道という考え方で人や動物の活動を顕在化し、建築と街の繋がりをつくることで、長い時をかけて「徑の生まれる街」となっていく?! ?br>(プレゼンテーションより抜粋)
建築に関しても具體的に提案しているのがよい。歩く人が前提で乗り物を排除しているように見えるが、実際には高齢者たちもいるので、モビリティのあり方についても表現するとよかった。
(小嶋一浩)
地上の人の動きが無秩序になった時に、地下には秩序立ったインフラが整備されているという、両方の提案があると面白かった。
(堀部安嗣)
ドローイングに見応えがある。既存の建築がどのように獣道に合わせた狀態へと移行していくのか、その境目のありようやプロセスを知りたい?! ?br>(平田晃久)
テーマに素直に応えている提案。絵も非常に上手いが、二次元的な感じがする。この街を実現するために支えるものは何か。この先の展開がどうなるのかをもっと聞きたかった。
(西村達志)
ホムンクルスとは、人の身體の重要な部分を大きさで表す概念のこと。
この考え方をきっかけとして構想を膨らませた。
人口減少が進む地方都市である群馬県前橋市をケーススタディとする。
これからの人口減少社會ではひとり當たりの私有地が大きくなりかねないが、豊かな公共性をもつ「地」の部分を増やすことが重要だと考える。
そこで、建物の輪郭を転寫して道と建物の関係を反転させる。今までの道の上には線狀の建物が建ち、街區は面的なオープンスペースへと変わり、より自由度の高いさまざまな使われ方をする「四角い道」となる。
四角い道は、それ自體の大きさや周りの建物との関係によって変化し、街に新しい価値を生み出す。
(プレゼンテーションより抜粋)
思い切った提案で、方法としては共感できる。アーチやコンクリート軀體など建築の形態操作が目立つ。
(小嶋一浩)
ホムンクルスが結果として図と地の反転に結び付くのかどうか疑問だが、思い切った問いかけは面白い。その意欲と展開していこうという勢いを評価したい。
(堀部安嗣)
人口減少をポジティブにとらえることと、この案のロジックの繋がりが見えないが、少ない要素でも集約された場所ができていく可能性を感じるし、建築のアイデアとしては面白い要素があると思う。
(平田晃久)
非常につくり込まれている案。転寫すること以外にもつくり方の提案があるとよかった?! ?br>(西村達志)
生活の場所としての機能が道を介して結びつくことで、多様な表情が表れる住まい方を提案する。ひとつの住戸內にある機能を解體し、自由に縦方向に積み上げる。塔は従來通りの家族のまとまりを構成する。この塔狀の住戸単位を複數配置し道で繋ぐことで、ひとつの家族間の関係性しかなかったこれまでの住居タイプに対し、それぞれの機能によって共有された他者との新たな関係性が生まれる。それぞれの道は形狀や材質が異なり、人の集まり方や雰囲気に差異を生み出す。この住宅群は、これまでひとつの住宅に重ねられていたさまざまな行為が並列する新たな風景をつくる。
(プレゼンテーションより抜粋)
シャッター街化する地方都市の更新とそれに伴う古材の流通の提案。岐阜県岐阜市にあるシャッター通りの一角に、古材の販売や製作を行う古材バンクを新たに計畫し、街の更新性の向上を図る。古材バンクは建物の減改築によって出る建具や木材を買い取り、新たな製材を規格化し、流通させ
ることで街の再構築を促す拠點となる。また、道路に沿って並ぶ建物の一部を減築することで、隣接する建物のこれまで隠れていた表情を表出させる。さらに空き部屋や空き店舗を活用して個の多様な表情の集積から奧まる表層をつくり出し、新たな道空間を生み出す。建築を道路から解放することが、持続可能な都市の構造として時間を超えて殘っていく。
(プレゼンテーションより抜粋)
町工場という地域の資源に著目し、町工場を周囲に開放することで徑の生まれる街の風景をつくる。敷地はものづくりの街、大阪府東大阪市。バブル崩壊以後、多くの町工場が閉鎖され、工場跡地はベッドタウンとしての開発が進められ、住工混在地域となっている。この住工の入り交じり方を新たに考える。既存の町工場を街に開放し、増加が見込まれる住宅を積層する。その隙間にそれぞれの機能が重なり合うような場をさまざまなレベルで設ける。外部をまたぎ、地元の商店や公共的な施設を巻き込みながら、場が広がっていく。人びとの活動がそうした場に反映し、その曖昧な道が、徑となって新しい街の風景をつくっていく。
( プレゼンテーションより抜粋)
雨を活用し、人びとの生活や心境に変化が起きる新しい道を提案する。車道、歩道、建物という既存のルールの中に自然を許容することで、おのずと道を浮かび上がらせ、人の感情や営みを想起させることを考える。道に窪みをつくり降雨時に水たまりをつくる。窪みの深さや大きさは場所によってさまざまであり、雨が降ることで道の様相を変えていく。道につくり出された窪みは、毎日の風景、人の心境など、街の様相を不規則にかつ自然発生的に変えていくことができる、小さくさりげない街の一部になる。
( プレゼンテーションより抜粋)
あらゆるものが通るところに徑ができる。何も通らないところには徑はできない。徑には〈目的地のある徑=ONのまち〉と〈目的地のない徑=OFFのまち〉があり、それぞれが通るまちの性格は異なる。住人は1日の中で、ONのまち、OFFのまちを行き來する。OFF-roadはあてもなくぶらぶら歩く、散歩道。人との距離感を探ることで生まれる徑。ON-roadはまちの住人の生活を支えるサービスと人が目的地となる、ひとりひとりの経路。
(応募案より抜粋)
家がひとつである必要はない。住人たちは、街に點在させた「おもや」と「はなれ」という「2つの家」に暮らす。「おもや」と「はなれ」は住人の暮らしを補完し合う関係で、住人が「2つの家」を行き交うことで、この街には「徑」が生まれる。そして、住人のそれぞれの「徑」が互いに交わることで、暮らしそのものが交わる街になる?! 。?応募案より抜粋)
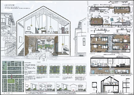
トオリ、ミセ、ナカ、オク、ニワ、それらを繋ぐトオリニワ。町家の要素を現在の都市に生かし、街を再構成していくことで徑が生まれる建築を提案する。従來の町家は一棟ごとに完結する住居として展開されているが、本提案ではこれらを環狀に連続させて相互に関係をもたせる。さらにレイヤー壁による空間構成を取ることで、さらに多くの間が生まれさまざまなアクティビティを誘発する。
( 応募案より抜粋)
道とは街並をつくっているルールである。また、同時に、生活殘余部分でもある。道路:交通を目的として計畫したもの。路地:建築が先行して計畫されたもの。このふたつの道が同時に現れるときに「徑」が生まれる。敷地の更新に伴う住戸間の殘余部分を設計し、「徑」を生み出す境界インフラをもつ境界帯住宅群を提案する。生活インフラとなる高い境界帯と、お隣さんのコミュニケーションを促す低い境界帯を設定し、街區形成を段階的に構築していく。
(応募案より抜粋)
「道路」を前提とした都市では、「道路」と「建築」は明確に分けられており、その境界としてのファサードが垂直に立ち上がっている。建築と道路との境界としてあったファサードを変形することで、多様な動線を生むランドスケープをつくる?!笍健工蜃畛酩位鶞胜趣筏平ㄎ铯违籁━辚濠`ムやプランを決定する「徑本位」のシステムで配された部屋は、「徑」と直に接する。各部屋にSOHOやアトリエ、ショップなど、職と住の一體を前提としたプログラムが入ることで、この「徑」全體がコミュニティの場として、地域の活性化に貢獻する。
(応募案より抜粋)
徑というのは、何かと何かを區切りつつ繋げるものではないだろうか。部屋の集まりを解體し、新しい集まり方へと繋げるこれからの住宅地を提案する。更新していく住宅地において、ひとつの家に玄関をたくさんつくり廊下をつくらないことで、外部に動線があふれ、徑ができる。玄関が増えると空室を他人に間貸でき、ひとつの家の使用者が増えることで、人びとのアクティビティが混ざり合っていく。1軒の家の住まい方は多様になり、1軒=1家という単位は崩され、同時に徑が1軒の家を紡ぐ。
(応募案より抜粋)
建築とまちの接點が少ない郊外住宅地に、複數のエントランス兼用のスペースをもつ、ウラ/オモテのないまちを提案する。あっちに、こっちに向いた住戸で編み込まれたまちには、互いの所有が重なり合い、不定形な道のような、広場のような、路地のような、さまざまな密度の「徑」が生まれる。住戸が集まることで、建築ヴォリュームに囲まれた場所には広場のような開けた「徑」や、路地のような入り組んだ「徑」ができる。さまざまな密度の「徑」が繋がり、敷地や街區を越えた街の連なりが現れる。
(応募案より抜粋)
この街の建築群は屋根より下は地面に埋まり、人びとは屋根の上を行き交う。建築の集合が街となり、街を行き交う人びとは連続する屋根の中に「徑」を生み出し生活を営み始める。生活に近い徑は人びとの気配を感じさせ、人と人を繋いでいく。屋根と屋根の間ではさまざまな活動が発生し、屋根の街に活気をもたらす。また、住宅がなくなるとそこは共同の中庭となる。地下をプライベート空間、地表に接する部分をセミパブリック空間、屋根をパブリック空間として、それぞれの領域を繋ぐ。
(応募案より抜粋)
東京に里山のような「町の生産機能」をつくることを提案する。土地の狹い東京には食糧を自給するだけの畑を用意することはできないが、近年開発が進んでいるオイル産生緑藻類を利用すると生活に必要なエネルギーを自給することが可能になる。このようなバイオマスエネルギーは生産コストに課題があるとされるが、庭先の盆栽栽培や自家菜園のような生産システムに載せることができる場をつくれば「エネルギーを自給する経路」が「暮らしの楽しみ」とリンクする。
(応募案より抜粋)
家の中心を大きくくり抜いて、新しい道をつくる。新しくできた道は、単調な住宅街の風景を変え、住民や近隣の人の新たな居場所となる。現代では、高齢化や核家族の増加に伴い、住宅の面積は従來の大きさほどは必要ない。余分な面積を「道」として街に還元する。この「道」は単調な街並に特徴を與え、新たな風景を生み出す。また、住人?周辺住民共に新たな居場所となり、道に人が溢れかえり、豊かさが生まれる。
(応募案より抜粋)
![]()