セキュレアガーデン豊川八幡駅南(愛知県豊川市)グリーンインフラの考え方を採り入れたレジリエンスなまち

愛知県での住宅開発の取り組みを紹介します。地域の伝統文化を隨所に取り入れながら、近年注目度が高まっているグリーンインフラの考えを採用したまちづくりにより、安全?安心で、生涯にわたって住み続けたくなるまちづくりを目指した事例です。
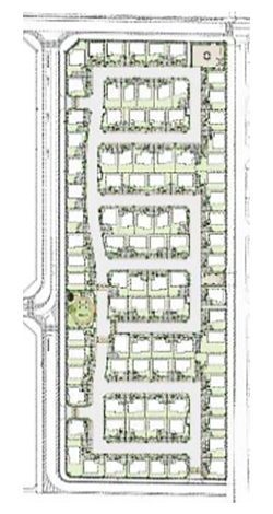
物件概要
愛知県南東部に位置する豊川市。冬でも溫暖な恵まれた環境や、日本列島のほぼ中心に位置する交通アクセスのよさから、農業と工業がバランスよく発展した街です。セキュレアガーデン豊川八幡駅南は、病院や商業施設をはじめ、八幡駅を核とした都市開発の一部としてスタートしました。まちづくりにおいては、「環境」「安全?安心」「豊かさ」「健康」「にぎわい」をキーワードに、周辺環境と調和した良好な景観形成や、再生可能エネルギーの活用、住まう方の健康に配慮した住環境の構築、防災?防犯対策等を講じています。

豊川市で初※となる無電柱の住宅地を実現。すっきりとした美しい空が広がる景観を形成しながら、まちの安全性も高めています。地震や臺風などによる電柱の倒壊や電線の斷線は、避難や復舊時の交通障害や感電のリスクを引き起こし、人や建物に甚大な被害を與える可能性があることから、これらリスクの低減を図っています。
※豊川市初の無電柱の住宅団地(2022年7月當社調べ)


住まう人の安心?安全を守るために
グリーンインフラの考え方に基づく減災対策
1990年代以降、歐米に端を発し、國內でも取り組みが進められている「グリーンインフラ」という考えに基づき外構を設計。アプローチや駐車場の轍部(わだちぶ)以外は、芝生?植栽や砂利で覆い、住宅地全體のアスファルト舗裝面積を減らしました。この結果、雨水が地中に浸透しやすくなったことに加え、水路との境界は嵩(かさ)上げ対策を施すことで、近年増加傾向にある集中豪雨などの水害リスクに備えています。

グリーンインフラとは?
グリーンインフラ(Green Infrastructure)とは、植物や水辺、土壌などの自然環境が持つ多様な機能を活用し、まちづくりや公園、河川、道路などのインフラ整備を行うことを指します。例えば、大和ハウスグループでは都市緑化を推進しているため、道路の植栽によって雨水の浸透を促したり、都市公園を整備して憩いの空間を創出したりしています。これにより、防災?減災、生活の質(QOL)の向上、生態系の保全、地域振興など、さまざまな面で人々の豊かな暮らしを支える役割を果たしています。
2023年6月2日に発生した線狀降水帯により、豊川エリアでは、観測史上1位を記録するほどの大雨に。豊川市も250棟を超える床上浸水が発生するなどの被害が発生しました。當分譲地でも強い雨に見舞われましたが、雨が上がった翌朝にはスムーズに排水がなされ、浸水被害を免れることができました。
● 6月2日(金)16時ごろ

● 6月3日(土)9時ごろ

地元 豊川稲荷との関連性を持たせたデザインを採用
外構設計にあたっては、地元豊川稲荷の石畳參道をイメージしたデザインに。また、使用する砂利は大本殿周辺の川砂利敷きと同じ地場産とし、地域文化との繋がりを意識するとともに、近隣地域の材料を使用することによる輸送時のCO2排出量削減に貢獻しています。
大本殿の石畳參道
大本殿周辺の砂利敷き
縞模様の御影石
さまざまな色の混ざった川砂利
轍以外は砂利や植栽で覆い、舗裝面積を減らすことで雨水の浸透率を向上させている
また、地場産の砂利を敷き詰めた緑化ブロックの縞模様は、豊川稲荷の石畳をデザインとして取り入れている
人とまちに優しく、環境と調和した住環境の形成
「まちづくりガイドライン」を制定し、97區畫の全ての戸建住宅に対して、環境に配慮した設備仕様や省エネ性能に関する第三者認証の取得をルール化しました。斷熱性?気密性に優れ、エネルギーコストを抑えながら快適に暮らせるZEH※を標準仕様とし、太陽光発電システムを搭載しています。また、臺風や地震などの災害発生時に停電した場合にも、家庭で使用する電力を確保できる5.4kWhの蓄電池や、HEMS(ホーム?エネルギー?マネジメント?システム)を全棟に採用しています。これらにより、人とまちに優しく、環境と調和した住環境の形成を図りました。
※ネット?ゼロ?エネルギー?ハウスの略。斷熱や省エネ設備の導入による省エネ性能の向上と太陽光発電などによるエネルギーの創出により、年間の一次エネルギー消費量が差し引きゼロとなることを目指した住宅のこと
太陽光発電システム
リチウムイオン蓄電池
HEMS
地域に長く愛されるまちでありつづけるために
このまちのもうひとつのテーマは「生涯にわたって住み続けたくなるまちづくり」。地域の生態系や伝統文化にも溶け込み、長きにわたって愛著を持って住んでいただくための環境配慮として、重要な環境課題のひとつでもある”生物多様性保全”にも配慮したまちづくりを進めています。
緑豊かで潤いある空間の創出
將來にわたり良好な景観の維持や、生物多様性保全に貢獻するため、建築協定や獨自のまちづくりガイドラインを制定。公園や宅地內の植栽は、地域の生きものが生息しやすいよう、在來種をメインに植えることで、周辺地域との生態系ネットワークをつないでいます。
具體的には、まちなみ景観に重要な役割を果たすシンボルツリーやコーナーツリーなどには在來種を中心とした植栽計畫のルールを策定し、樹木リストのなかからお客さまのお好みの樹種を選定いただいています。また、そのなかの一部には、橫に拡がりにくい“立性”と呼ばれる樹形を選別し植えることで、地域の伝統である手筒花火の火柱をイメージした景観統一につなげています。

まちづくりガイドラインの一部

豊川の伝統”手筒花火”

手筒花火を想起させる立性のイロハモミジ
生物多様性保全とは?
生物多様性保全とは、地球上の多様な生きものとその生息環境を守り、持続可能な形で地球の資源を使うことを目指す取り組みです。日本は島國?溫暖な気候?さまざまな地形を有するなどの特徴から、古來より獨特の生態系を有しています。現在、日本に自生する約7,000種の樹木や草花のうち、約4割は日本でしか見られないものだとも言われています。
大和ハウスグループでは、都市の開発により生態系が破壊されることのないように、緑の量と質にこだわったまちづくりを行っています。その地域の風土に根付いたいきもの(動物?昆蟲など)は、昔からその地域に自然に分布する『在來種』の植物に棲みつきやすく、もともとはその地域に存在せず人間の活動により他の地域から入ってきた『外來種』や、観賞用の園蕓種は本來その地域に存在しない種のため、生態系ネットワークにつながらない可能性があります。そこで、當社グループのでは在來種を増やす取り組みを進めています。

この取り組みは全事業を通じて取り組んでおり、実施しなかった場合と比較して、都市部において約3~5倍の生物多様性保全効果があることを確認できました。
生き物の暮らしやすさの向上度
生き物が増える効果
樹種?鳥類?蝶類種の平均捕捉率および平均再生効果
捕捉率:周辺5km內のチョウなどをどれくらい呼び込むことができるかの割合
再生効果:周辺1km內の鳥やチョウなどの個體數増加への貢獻度
伝統文化と融合したレンガモチーフ
豊川市で生まれ育った方だけではなく、市外から移り住まれた方、これから生まれ育っていく子どもたちにとっても、このまちが故郷になる。まちを印象付けるエクステリア(外構)の素材や色を、代表的な地域の伝統文化の「手筒花火」の火柱と手筒の荒縄をイメージしてデザインしました。地域の愛著を持っていただくきっかけづくりにつなげているほか、素材は耐用年數の長いレンガを採用し、ライフサイクルにおけるCO2排出量の抑制につなげているとともに、地元三河の工場で生産したものを使用することで、運搬にかかるCO2排出量も削減しています。
街區內の公園
ゲート部
コーナー部
各住戸の門柱
お客さまの聲
ZEHへの対応は昨今の環境問題を鑑みると必要だと感じました、太陽光発電パネルや蓄電池は、災害時にも対応できるのが魅力。
また、分譲地全體で地域とのつながりを大切にした植栽が施されていて、非常に良い。庭の木々の開花や紅葉で、季節の移り変わりをふとした時に感じられるのが良く、溫かみを感じています。
(※お住まいの方を対象にしたアンケートコメントより一部抜粋)
営業擔當者の聲
さまざまな災害がより身近な危機として私たちの暮らしに迫っているなかで、「災害に対してきちんと備え、お客さまに長く安心?安全に住んでいただくこと」は、當社の家を選んでいただく価値にもつながっていると考えています。迫りくる災害を私たちがどう捉え、どのようにまちづくりに反映させているか。1つ1つのこだわりを知っていただくことで、お客さまにとって、さらなる安心につなげていきたいと考えています。

岡崎支店
住宅営業所 営業課
店長 西川 高志
企畫擔當者の聲
このまちで育ち、巣立った後も、また戻ってきたいと思えるような愛著を抱いてもらうにはどうしたら良いか、また、安心して次世代に住み継いでもらうには何が必要か。このことをずっと念頭に置きながらまち全體の設計を考えました。
長く愛されるまちづくりが、使う資源を最小限に抑えることにつながり、環境課題の解決にもつながると考えています。

東京本社
住宅事業本部 設計推進部
設計室まちなみグループ
主任技術者 舘 智徳
※掲載內容は、取材當時(2024年12月)の情報です。


