
[ 大阪府 Sさま邸 ]
邸宅としての質感があること。家族が暮らしやすいこと。
いくつもの希望を取り入れながら調和させた
こだわりの光るお住まいです。

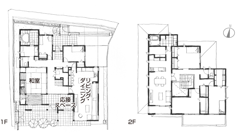
大阪府內の閑靜な住宅街に建つSさま邸。邸宅としての風格がある家を建てたいとお考えになったSさまは、ダイワハウスの設計士に御影石を多用するようオーダーされました。その希望をかなえ、室內の隨所に御影石をはじめとする自然素材を取り入れた、格調高さと心地良さの同居するお住まいが完成しました。
玄関ホールは仕上げの違う2種類の御影石が足元を彩ります。正面の階段ホールの壁は野趣あふれる自然石張り。
さらに、玄関右手にある応接スペースは、版築※風のアクセント壁を用い、溫かみを感じさせる仕上げに。さまざまな異素材を調和させ、高級感を感じさせる空間へとまとめ上げました。
- ※土を建材に使い、強く突き固める方法

連続して造り付けたソファが、リビングとダイニングの空間に統一感をもたせます。晴れた日はコーナーのサッシから自然光が差し込み、爽やかな雰囲気に
広々としたリビング?ダイニング?キッチンは落ち著きを感じさせるシックなデザイン。深いブラウンの木目で床や壁、システムキッチン、家具などをコーディネートしました。玄関の応接スペースを飾る版築風の壁の裏側が、リビングのアクセント壁につながっています。
家族や親類など、多くの人が集まってもゆとりをもってくつろげるための工夫も。壁に約5m幅のソファを造り付けたり、天井にコーブ照明を取り入れたりして、空間をすっきりとデザインしました。

ソファ背面のアクセント壁のような部分は、開閉式の明かり取り窓
ご先祖を祭るための10畳の和室は玄関ホールの左手に計畫。洋風の玄関ホールとの調和に配慮し、モダンな印象の障子を取り入れました。奧行きのある広縁の効果で、より広さや開放感を感じる空間となっています。
「さまざまな希望を伝えましたが、ダイワハウスさんがそれぞれを調和させ、デザインだけでなく住みやすさも考えた家を提案してくれました」とSさま。思いやりに包み込まれるようなお住まいで、3人の子どもたちと共に、新しい暮らしを慈しんでおられます。

ジャパニーズモダンスタイルの和室。ホールや広縁との段差を解消し、大勢の集まりにも対応できるしつらいに

ともにくつろぐSさまと愛犬

奧行きのある縁側はスプーンカット仕上げで質感豊かに


| 商品名 | xevoTILE |
|---|---|
| 敷地面積 | 236.35m2(71.49坪) |
| 床面積 |
|
| ご入居時期 | 2015年6月 |
- ※掲載寫真の外観?仕様?外構等については、敷地、周辺環境等の諸條件や地域の條例その他諸事情により採用できない場合があります。
- ※現行商品では採用できない仕様?アイテムが含まれる場合があります。

-

Team-xevoとは建築士や施工技術者などの専門スタッフで構成し、お客さまがマイホームを考え始める時からご入居後も生涯にわたり、ずっとサポートするチームです。

寫真左から、山本、鶴







![[あなたと描くリブスタイルデザイン情報誌 and.y] and.y 冊子をお申し込みいただき、冊子內の限定プレゼント企畫にぜひご応募ください!冊子を申し込む](/tryie/and/common/images/bnr/bnr_pre2.jpg)












