
[ 石川県 Mさま邸 ]
家族がつながり合って楽しく過ごせること。
明るく開放感のある空間であること。
Mさまご夫妻は毎日を大切に暮らすお住まいを築かれました。

長男の蒼梧(そうご)くんの就學前にマイホームを建てたいと、土地探しから家づくりを始めたMさま。営業擔當への信頼や設計擔當の描く空間イメージのセンス、xevoΣ(ジーヴォシグマ)の高い耐震性への安心感からダイワハウスを選ばれました。
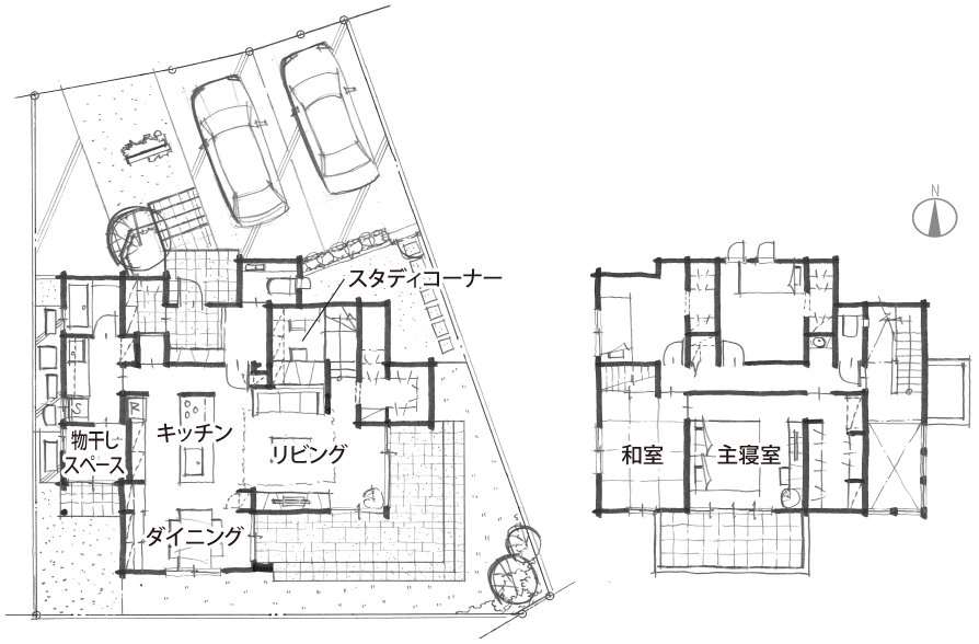
夫の秀樹さんがこだわったのは、蒼梧くんや長女の葉月ちゃんが親の目の屆く所で勉強できる場所をつくること。リビング階段にスキップフロアを設け、リビングやダイニングにいる家族と會話しながら、本を読んだり宿題をしたりできるスタディコーナーにしました。
「とにかく明るい家を」と希望したのは妻の雅子さんです。隣家との距離が近く開口部を取りづらい土地でしたが、吹き抜けを活用することでその願いをかなえました。また、フラットなテラスで庭とリビングとの一體感を演出しています。

スキップフロアに設けたスタディコーナーは、リビングダイニングとつながりつつ獨立性のある空間

キッチンからはリビング全體を見渡せます。開放的なリビングですが、吹き抜けにより空気が対流するため、冬場も床暖房だけで十分暖かいそう
家事動線に工夫があるのもMさま邸の特徴です。キッチンを間取りの中心に據え、その周りをぐるりと回遊できるレイアウトになっています。キッチンから洗面室、物干しスペースへの動線も良く、家事をてきぱきとこなすことができます。
キッチンと橫並びに設けたダイニングは、落ち著いて食事ができる雰囲気を演出。リビングとの境に収納スペースをつくることで、ゆるやかに空間を區切りました。この他にも大容量のキッチン背面収納や、外から帰ったらすぐに著替えられる1階のウォークインクローゼットなど、住まいの隨所に収納スペースを確保しています。適材適所の収納のおかげで、すっきりした住空間を保てているそうです。
キッチンの天井は折り下げ天井とし、間接照明を採用。不自然な影をつくらず、柔らかい光で空間を満たします。天井の形は、Mのイニシャルをイメージしたもの。さりげない遊び心が光るお住まいです。
「引っ越してから、休日を家で過ごすことが多くなりました」とMさまご夫妻。家族4人の絆が、この場所でより強く育まれていきます。

光の注ぐリビングでくつろぐMさま一家

リビングとスキップフロア、2階ホールをつなげた、コミュニケーションが取りやすい間取り

玄関ホールには質感と調濕機能のあるエコカラットを張り、間接照明で陰影を際立たせています

キッチンと橫一直線に設計した機能的なダイニング


| 商品名 | xevoΣ |
|---|---|
| 敷地面積 | 222.25m2(67.23坪) |
| 床面積 |
|
| ご入居時期 | 2015年10月 |
- ※掲載寫真の外観?仕様?外構等については、敷地、周辺環境等の諸條件や地域の條例その他諸事情により採用できない場合があります。
- ※現行商品では採用できない仕様?アイテムが含まれる場合があります。

-

Team-xevoとは建築士や施工技術者などの専門スタッフで構成し、お客さまがマイホームを考え始める時からご入居後も生涯にわたり、ずっとサポートするチームです。

寫真左から、安藤、池原、伊藤










![[あなたと描くリブスタイルデザイン情報誌 and.y] and.y 冊子をお申し込みいただき、冊子內の限定プレゼント企畫にぜひご応募ください!冊子を申し込む](/tryie/and/common/images/bnr/bnr_pre2.jpg)













