
貓と暮らす家 犬と暮らす家
習性や行動をきちんと理解した上で、動線や空間づくりを工夫すると貓や犬との暮らしは大きく変わります。貓も犬も、そして人も心地良い家づくりを考えていきましょう。
~ダイワハウスの犬と暮らす家提案~
わんぱくで好奇心旺盛な犬。大好きな運動をさせてあげたい。
安全にはしっかり配慮して、リラックスできる居場所もつくってあげたい。
そんな気持ちに応える、愛犬と暮らす住まいをご紹介します。
犬と暮らすために、犬のことを知ろう
人間と一緒に生活する犬は、人の思い込みによるストレスもしばしば。例えば、家全體を動き回れること、いつも人と一緒に居ることがストレスの原因となることもあります。
わんぱくで好奇心旺盛な犬。大好きな運動ができて、安全にも配慮し、リラックスできる居場所もつくってあげたいですね。そのためには犬の習性や行動を知り、犬が住まいで快適に過ごせる工夫を整えてあげましょう。
犬の好きなこと?苦手なこと、知っていますか?「どうして?」と思うような行動の裏には、習性や特性が隠れています。
むやみに叱らず、一つの個性として理解してあげましょう。

運動
室內犬やシニア犬もたくさん運動させてあげたい。
庭で遊べるドッグラン、家の中でも動き回れる回遊動線を。
お散歩は準備と片付けが意外と大変。犬のためにもスムーズにしてあげたい。
専用の足洗い場や、グッズをまとめてしまえる玄関土間収納を。
生活?習性
落ち著いてリラックスできる居場所をつくってあげたい。
家族と一緒にいながら適度な距離を保てる専用の居場所(インナーテラス)を。
外を眺めるのが大好きな犬。犬ものぞける窓があれば…。
犬の目線の高さに、外の様子を観察できる見晴らし窓を。
安全
フローリングで滑らないようにしてあげたい。
滑りにくく、體への負擔が少ない素材やコーティング床を。
危険がいっぱいのキッチンには入れないようにしたい。
出し入れ自由なペットゲートで、調理中は立ち入り禁止に。
毎日の散歩はスムーズに、室內でも自由に遊べるように。
犬の習性や日々の行動を考慮したプランで、愛犬といつも一緒に、快適に過ごせる暮らしをかなえます。
延床面積: 119.88m2(36.26坪) 1階: 36.34m2(10.99坪) 2階: 45.54m2(13.77坪) 3階: 38.00m2(11.49坪)
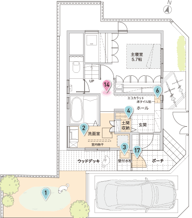
庭のドッグランは犬の足にやさしい芝生を採用しました。
たっぷり遊んで運動不足を解消し、ストレスを発散。散歩の途中で疲れてしまうシニア犬も、ドッグランなら自分のペースで運動できます。
洗面室は、グルーミングスペースとしても使える広さを確保しました。明るく開放的な空間で、日々のお手入れができます。
散歩帰りには、玄関ポーチ脇の足洗い場へ。お湯が使えるため寒い冬も快適です。
リードやお散歩バッグをしまえる土間収納の一部は、洗面室につながっています。足拭きタオルを玄関側から取り出せるため、毎日のお散歩がスムーズです。
運動不足?ストレス解消のため、ごはんスペースを中心に、LDKから廊下まで回遊できる動線を計畫。室內を自由に動き回れます。
※掲載のアイテムには、一部、別注対応品が含まれます。詳しくは擔當者にお尋ねください。
外の様子が確認できる小さな窓を設置し、家族のお見送り?お出迎えができるようにしました。水飲み場も兼ねており、床は濡れても大丈夫なタイル貼りです。
人の動線と交わらない場所にトイレスペースを設置。足を上げて用を足してもいいように、マグネットボードの壁にトイレシートを磁石で固定できます。天井には脫臭機能があるナノイー発生機を取り付けています。
犬は食事の際、ごはんや水をこぼしてしまいがち。汚れても掃除がしやすいように、床をタイル貼りにしています。上部にはペットフードなどがしまえる収納も設置しました。
モップや掃除用ワイパー、掃除機が収納できる物入れを設置。
リビングに出しっぱなしにしがちなお掃除アイテムをスッキリ収納できます。充電式掃除機用のコンセントもあって便利。
動くものに興味を示す犬の習性を踏まえ、階段の踴り場に外が眺められる見晴らし窓を。犬の目線に合わせて、あえて低い位置につくりました。
いちいち階段を下りなくて済むように、3階にも水飲み場を設置。人の動線上にあると足をぶつけてしまうため、廊下の一角を掘り込んでスペースを設けました。
LDKのそばに愛犬の居場所をつくりました。家族の気配を感じられる一方で、人の動線と分けてリラックスできるよう配慮しています。床は體溫調節が苦手な犬のためにタイルを採用しました。
※掲載のアイテムには、一部、別注対応品が含まれます。詳しくは擔當者にお尋ねください。

滑りやすいフローリングは、犬の足腰に負擔をかけてしまうことも。シリコンコーティングやコルク材のフローリングを取り入れ、滑りにくくしています。
キッチンの入り口には、勝手に立ち入らないようゲートを設置。調理中の危険から守り、食材の誤食を防ぎます。ゲートは腰壁に収納可能です。
道路への急な飛び出しを防ぐため、アプローチには門扉に加えて犬用のフェンスを設けています。ドッグランやウッドデッキで遊ばせる時も安心です。
階段の段差を低くし、勾配を緩やかにした階段。表面はシリコンコートと組み合わせると、より滑りにくく安心です。
POINT
自分だけの空間でゆっくり休めるペットスペース
ダイニングの橫に、愛犬用のスペースを設置。犬小屋を思わせるデザインの開口部から勝手口を通って、直接庭へ出られます。ご家族の生活動線と交わらないので、家の中が汚れる心配もありません。「勝手口のドアを開けるとサッと庭に走り出て、楽しそうに駆け回ります」とSさまは語ります。

POINT
7匹の愛犬が存分に走り回れる屋上ドッグラン
7匹の犬を飼っているKさまご家族。元気いっぱいの愛犬たちをいつでも遊ばせられるように、ドッグランを屋上に設けました。小型犬が暮らす家もドッグランの一部に設置。自宅でも存分に體を動かせるため、運動不足の心配がありません。

※掲載のアイテムには、一部、別注対応品が含まれます。詳しくは擔當者にお尋ねください。
POINT
階段下のデッドスペースを活用した犬専用の空間
狹いところを好む犬のために、リビング階段下のデッドスペースを活用して専用の居場所を設けました。リビングにいる家族の気配を感じられるため、犬にとってもうれしい空間に。2方向から出入りでき、回遊動線にもなっています。

※掲載のアイテムには、一部、別注対応品が含まれます。詳しくは擔當者にお尋ねください。

犬との暮らしを快適にする、各種アイテムをご用意しています。
犬の特徴や習性を考慮して、人も暮らしやすい住まいをかなえます。
自然の風を好む貓や犬のために、屋外への飛び出しを防ぎながらも、新鮮な外気を部屋に取り込みます。日差しの遮蔽性も高く、節電?省エネ効果も。
※畫像はイメージです。建物の仕様は異なります。
畫像提供:オイレスECO株式會社
ドアの激しい開閉を抑え、勢いよく閉まるドアにペットが挾まれるといった事故を防ぎます。衝撃音軽減の対策としても効果的です。
ペットが歩きにくいフローリング床を、コーティングによって滑りにくくしています。汚れた場合にお手入れが楽なのもうれしいポイント。
防滑オレフィンシートを表面材に使用。滑りにくく、ペットの歩行をサポートします。ひっかき傷や汚れに強く、材料の膨張、収縮などの寸法変化も少ないため、床暖房にも対応しています。
※床暖房は対応機種が限定されていますのでご注意ください。
※本製品は、主に小型犬の通常動作における肉球との滑り抵抗を一般フロアより高め、滑りにくくつくられていますが、動作の激しさや犬種?年齢などを含む個體差により、滑りにくさに違いが生じるため、別途対策を必要とする場合があります。
暑さに弱いペットにとって、ひんやり冷たいタイルは夏のお気に入りアイテムに。
家具を移動させずに敷ける置き敷きなので、並べて置くだけ。汚れても部分的に洗えるためお手入れも簡単です。気になるダニやペットのニオイにも対応した衛生的な商品です。
室內の余分な濕気を吸収し、乾燥時には放出。濕度コントロールに加え、脫臭効果も高いのが特長です。ペット臭やトイレ臭などを抑え、きれいな空気をつくります。
※「エコカラット」は(株)LIXILの登録商標です。
人の腰の高さの「見切り」部分で上下にクロスを貼り分けています。ペットの體のすり寄せなどで汚れたり傷んだりしても、下半分だけを貼り替えられ、全面貼り替えに比べ、コストを抑えられます。
貓や犬のひっかき傷に強い壁紙。ペットとの暮らしに安心です。
※「スーパー耐久性クロス」は(株)サンゲツの製品です。
畫像提供:株式會社サンゲツ
99%以上のウイルスの不活化効果が確認されたコーティングを施すことで、家じゅうまるごと抗ウイルス化。抗菌?消臭?防カビ性能も備えており、ペットが舐めても安全な素材でできています。
※吸著性光觸媒コーティングの施工範囲はガラス面?鏡面仕上げの素材?システムバス空間等を除く(詳細はお問い合わせください。)
天井埋込型の空気清浄機です。
ハウスダストやペットのニオイ、冬期の水蒸気などを除去します。
※ペット自身のニオイがなくなるものではありません。
※各種汚染物質を除去、低減する効果はありますが、完全にゼロになる訳ではありません。
ペットの動きにセンサーが反応します。近づくと天井換気扇のスイッチが自動的にオンに。離れるとオフ(※)になるので、スイッチの操作が不要です。
※最大30分間運転が可能です。連続運転も可能です。
上:天井換気扇
下:センサー
お家を見守る
家の周辺をカメラが見張り、センサーが検知するとテレビドアホンに表示、同時にSDカードに動畫で録畫します。外出中でもお手持ちのスマートフォンにお知らせし、來訪者を確認できます。
屋外タイプ

屋外カメラは、デザインや機能に応じてAI防犯カメラ(高意匠カメラ)とワイヤレスカメラの2機種からお選びいただけます。庭先や玄関まわり、駐車場に設置して家の周囲の確認ができます。
家族を見守る
屋內カメラは、左右360°、上下90°を見渡せる首振り機能を搭載しておりスマートフォンからカメラを操作できるので、外出先からカメラをパン/チルトさせて部屋の中を動くペットを追いかけて見守りなどにもお使いいただけます。
屋內タイプ

スマートフォンからいつでも動畫で映像を確認したり、お話したりすることができます。また、対応のテレビドアホンと接続してモニター親機に挿入したSDカードに録畫もできます。
お散歩用のバッグやリード、ビニール袋やおもちゃなど意外と多い散歩グッズをたっぷり収納できます。玄関からすぐの土間スペースにあるため、お散歩前の準備もお散歩帰りの片付けもスムーズ。土間のプランに応じて、さまざまなタイプをご用意しています。
多種類のペットグッズが収納できる吊戸収納。下部は囲まれた場所が好きなペットのためのスペースとして、その他多目的な収納スペースとして利用できます。
座って靴の脫ぎ履きができるほか、散歩前のリードの取り付けや帰ってきた時の足のお手入れなど、ペットをベンチの上に乗せ、楽な姿勢で行えます。また、引き出し収納が付いているため、靴用品や散歩グッズなどを収納することもできます。
土間収納などお散歩グッズを収納できる場所が確保できない場合、フックが壁にあると便利です。
小型犬や貓のシャンプー、散歩帰りの足のお手入れに役立つシンク。玄関などの土間スペースに設置すれば、ガーデニング用品やアウトドア用品を洗うのにも便利です。周囲の壁にはサニタリーウォールを設けて、水ハネ対策を。
1. 正面 2. 収納例 3. ハンドシャワー水栓 4. シンク形狀
就寢中、ペットがトイレに行きたくなった時などに自由に部屋を出入りできて便利。貓用はフリー、インオンリー、アウトオンリー、ロックの4通りで使用できます。無音作動なので、音も気になりにくいです。
※ペットドアは輸入品のため、予告なく仕様変更となる場合があります。
ペット専用スペースの出入り口に設置。普段は扉を開けて同じ空間で過ごすことができ、外出中や來客時には扉を閉めてペットの出入りを制限できます。
給水?給湯接続タイプで、屋外でもお湯が使えます。フックやシャワーヘッド付きホースなどの機能を付ければ、ペットのシャンプーに便利です。
調理中のキッチンや2階へ続く階段など、ペットに立ち入らせたくないところに設置します。立ち入ってはいけない場所だと明確にすることで、しつけもしやすくなります。
※掲載のアイテムには、一部、別注対応品が含まれます。詳しくは擔當者にお尋ねください。