エントランス(2025年2月撮影)
端正な建築と爽やかな自然が調和するデザインを追求。
凜とした存在感を放つ、重厚でシャープなゲートが住まう方を迎えます。
エントランス(2025年2月撮影)
DESIGN SUPERVISION
自然との調和を大切にしてきた國立の街並みに寄り添いながら、端正な奧深さを感じるデザインを追求しました。普遍的で現代的な直線の整形がもたらすリニアな修景をアイコニックに、素材一つひとつが持つ表情を丁寧に魅せることで、存在感のある美しさを創出します。

LANDPLAN
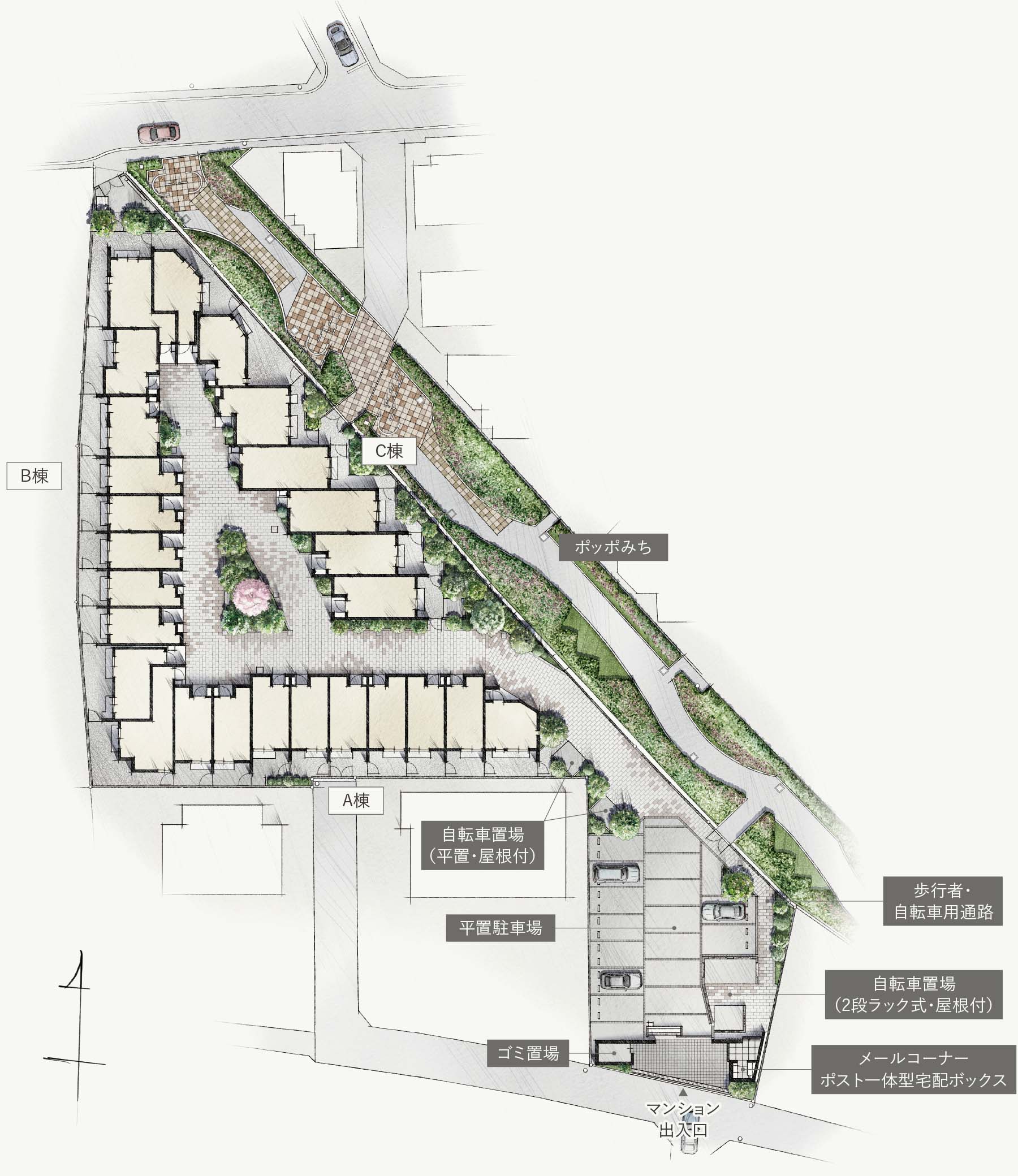
ゲートをくぐり抜けた先に広がるのは、
中庭を中心に建ち並ぶレジデンス。
北東側の住戸は前後に住戸をずらすことで、
プライバシー性に配慮しました。
暮らしの中でほどよく緑を感じるランドプランが、
自然と共にある心地よさをもたらします。
外観(2025年2月撮影)左:A棟、奧:B棟、右:C棟
敷地配置イラスト
アプローチ(2025年2月撮影)住まいへと続くアプローチは奧へと進みたくなるような、やすらぎを感じる緑にあふれた小道に。緑量のある木々を選定し、外からの目隠しの役割も擔います。
ポッポみち(徒歩2分?約130m)本物件北東側に面した小道は通稱「ポッポみち」と呼ばれ、「國立」駅から鉄道総合技術研究所へ続く線路の面影を殘しながら、街に穏やかな景色をもたらしています。
中庭(2025年2月撮影)敷地の中央にはシンボルツリーとベンチを設けた、住まう方の心を潤す中庭を配置。ふとした時に季節の移ろいを感じる、癒しのスペースが広がっています。
MATERIAL
建物に採用しているマテリアル本格的な石材調の仕上がりで重厚な質感を表現するマデストンを中心に、模様や色味に変化を付けることで奧行きのある外観デザインに。洗練さを纏う無機質な素材を用いながら、質感の違いを活かした端正な住宅の表情を描いていきます。
EQUIPMENT
參考寫真ポスト一體型宅配ボックス
メールコーナーには、留守中の宅配物が24時間いつでも受け取れる、便利なポスト一體型宅配ボックスを設置。
參考寫真EV対応充電器
EV対応充電器を平置駐車場に導入。東京ガスのEV充電サービス「EVrest(イーブイレスト)」のアプリを利用することでEVへの充電が可能です。
※詳しくは係員にお尋ねください。
Image Photoペット飼育可
大切な家族の一員であるペットと一緒に暮らせます。
※ペットの種類、大きさおよび頭數等には制限があります。詳細は擔當者にご確認ください。
PLANTING DESIGN
ポッポみちと隣接するエリアは、街の自然と
馴染む穏やかな植栽を選定。
住まう方を迎えるゲートにはシンボルツリーを、
アプローチにはやすらぎへと誘う
緑量を感じる木々を配置しました。
Image Photoカツラ
Image Photo常緑ヤマボウシ
Image Photoトキワマンサク
Image Photoヒメユズリハ
Image Photoヤマザクラ
Image Photoイロハモミジ
DISTRICT
用途地域概念図低層住宅がゆったりと建ち並ぶ「第一種低層住居専用地域」と店舗や事務所など利便施設も建てられる「第二種中高層住居専用地域」に誕生した「プレミスト國立ゲートレジデンス」。また、本物件は建築規制が定められた「第二種文教地區」にあるため、心地よい住環境が守られています。
※掲載の敷地配置イラストは設計図書を基に描き起こしたもので実際とは多少異なる場合があります。車は販売価格に含まれません。
※掲載の環境寫真は2022年5月に撮影したものです。
※掲載のマテリアル寫真は2024年7月に撮影したものです。実際の質感や色等の見え方は多少異なる場合がございます。